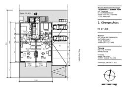
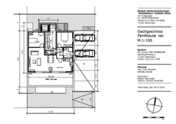
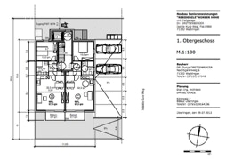
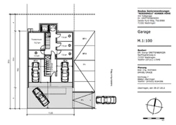
MFH 7 WE Altersgerechtes Wohnen
Waiblingen
Menü
Home
Architektur
Projekte
Immobilienoptimierung
Baubiologie
Impressum
Diese Website verwendet Cookies. Bitte lesen Sie unsere Datenschutzerklärung für Details.